12+ abs control module diagram

Dorman - OE Solutions Remanufactured ABS Control Module 3. 12-10281 ABS Control Module 2000-2001 Ford Expedition.


Dave S Volvo Page Volvo Engine Wire Harnesses

Buy online pick up in-store in 30 minutes.

. Mercedes S500 - W140 S500 W220. Use the appropriate tools to remove the mounting bolts that hold the ABS control module in place. These codes can indicate open and shorts in the.

You have now checked almost every part that usually is prone to damage in the ABS module. Vehicle Info Required to Guarantee Fit. Remove the failed module and replace with the new unit.

2007 Jeep Wrangler Rubicon Sahara Unlimited Rubicon Unlimited Sahara 2WD Unlimited Sahara 4WD. Conduct Stator Ring Scan. I see the 2WAL control module mounted adjacent to the master cylinder.

Reverse engineering provides insight into how and why the unit originally failed. Up to 4 cash back Save on ABS Control Modules at Advance Auto Parts. 1 SD-13-4983 Bendix EC-80 ABS ATC Controllers FIGURE 1 - Bendix eC80 ABS And ATC COnTROLLeRS INTRODUCTION Bendix EC80 ABS and ATC controllers are members.

Reverse engineering provides insight into how and why the unit originally failed. Nearly 30 of codes concern the internal operation of the ABS module including the pressure sensor s solenoids and pump. CARDONE Remanufactured ABS Control Modules are designed to meet or exceed OE.

The 4WAL pic shows the ABS module but what I need is the Control module location the. I found out I am getting an open circuit on the 12-13 and 14-15 which are. Finally got a chance to put diagrams to use.

Plug in the wiring terminal. Thank you for your reply. Fits the following Jeep Wrangler Years.

CARDONE Remanufactured ABS Control Modules are designed to meet or exceed OE. Sometimes you may have a damaged ABS and fail to see the.


Abs Ii Low Voltage Fault Modification


Amazon Com Stem 1 18 Diy Rc Car Building Kits For Age 8 1 18 Scale 4 4 Remote Control Car Assembly Kits 74pcs Diy Stem Toy Car For Boys And Girls Stem Toys Gift


Solved Szl Failure Replaced Dsc No Communication Bmw 3 Series E90 E92 Forum


Msi Pro Z690 P Ddr4 Lga 1700 Intel Z690 Sata 6gb S Atx Intel Motherboard Newegg Com


Traction Control Wiring Diagrams Please When I Turn Off The


Abs Module Repair Youtube


Eurospares Lamborghini Huracan Lp610 Lp610 4 Coupe 2015 881 02 00 Backrest


Jun Ming Liu Antilock Braking System Bench Test


Abs Module Repair Save Time And Money With Our Abs Repairs Upfix


02 Dodge Dakota Durango 4x4 Anti Lock Brake Abs Module 52010219ad Oem Your Part Source


Can I Get A Electrical Diagram For The Abs Circuit And Where Is


Abs Men With Machines


Abs Anti Lock Brake System Stabilizer Control Module 56044148aa Walmart Com


Pb Auto Electrics Commercial Leisure Products Webasto Dual Top Evo St6 St8 Common Replacement Parts Pb Auto Electrics Commercial Leisure Products


98 99 Ram 1500 4x4 Awal Abs Anti Lock Brake Control Module 52009431af Your Part Source


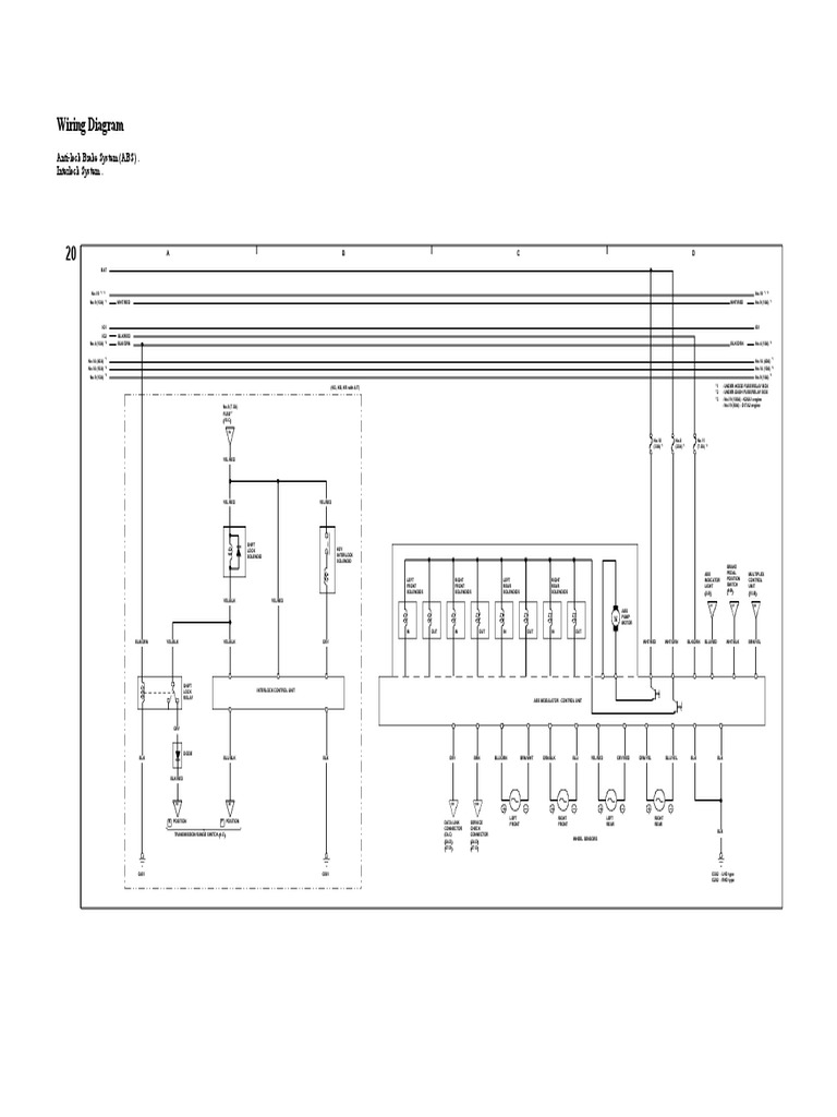
Wiring Diagram Anti Lock Brake System Abs Interlock System Pdf Anti Lock Braking System Vehicle Technology


Electric Power Steering 56 Fairlane

Iklan Atas Artikel

Iklan Tengah Artikel 1

Iklan Tengah Artikel 2

Iklan Bawah Artikel